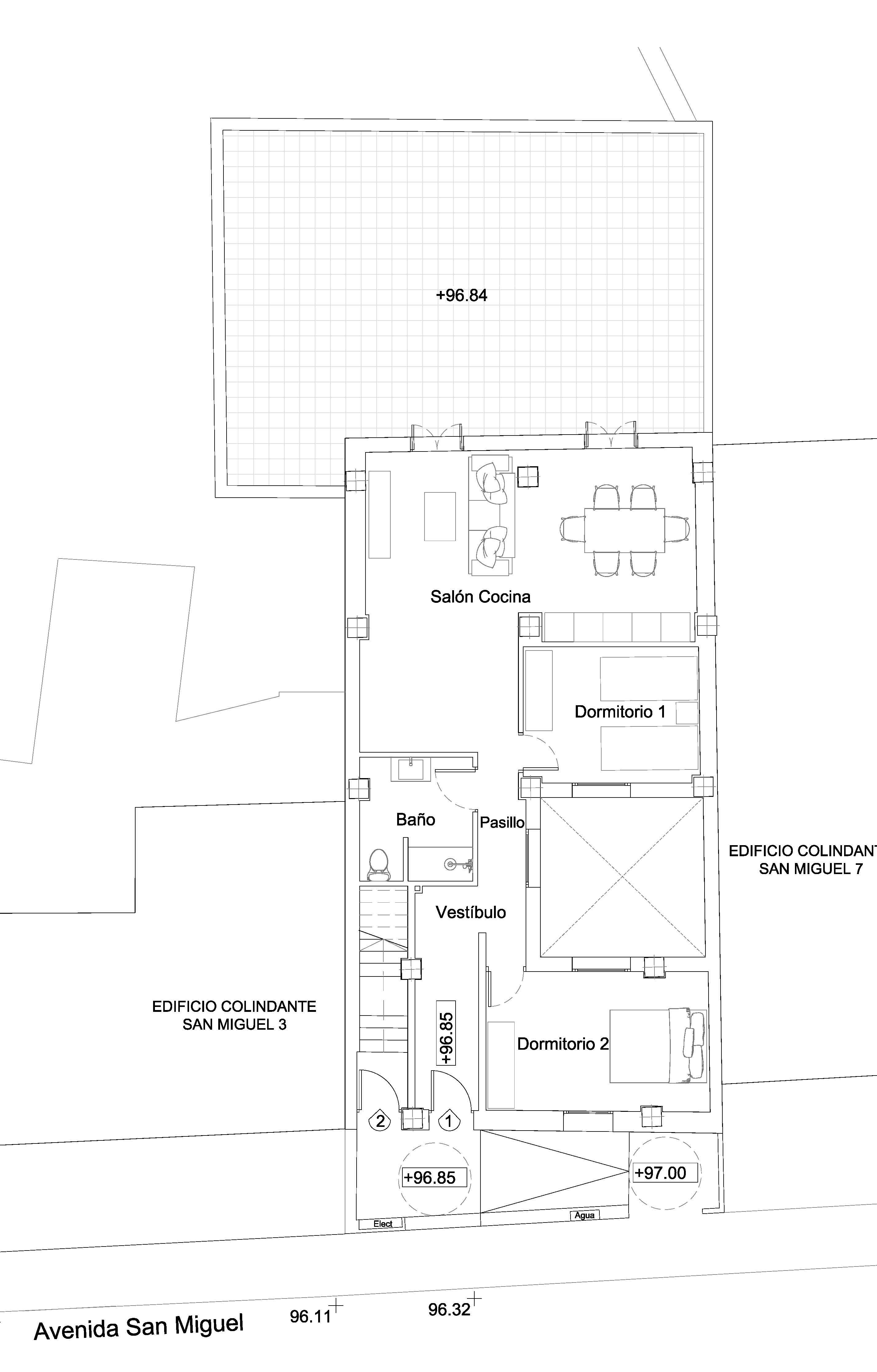
Esta obra consistió en la rehabilitación integra de un edificio para convertirlo en un edificio de 3 viviendas y garajes.
El edifico fue construido en el año 1979, teniendo una imagen exterior no acorde con el Conjunto Histórico de Vejer de la Frontera. Al estar dentro de la zona considerada Conjunto Histórico, se proyectó una reconversión total de las fachadas, para asemejarlas al resto del conjunto histórico, donde predomina el macizo sobre los huecos de ventanas y puertas.
En su interior, se remodeló al completo, para conseguir tres nuevas viviendas.
FACHADA DELANTERA INCIAL
FACHADA DELANTERA FINAL
FACHADA TRASERA INCIAL
FACHADA TRASERA FINAL





