La organización de conjunto se ha distribuido de manera central en mitad de la parcela. De manera tal que se cumplan la separación a linderos establecida en las NNSS, así como una sola edificación que conecta los diferentes núcleos. A los efectos de la utilización de la finca y los servicios que esta ofrece, debemos decir que se genera una serie de usos conectados con caminos terrizos, para el entretenimiento y disfrute de los servicios que rodean a la edificación principal: era, huerto, bosque de frutales, poza natural con fitodepuración (biotopo de carácter didáctico) y jardín con especies melíferas que sirva como santuario apícola (ya que se facilitará forraje y agua para las abejas).
Todas las
estancias están pensadas para que se alternen los usos en espacios abiertos y
cerrados, integrando así el fuerte carácter rural que tiene el proyecto y
facilitando de esta forma el disfrute del medio natural tanto como sea posible.
Además cada edificación se mimetizará con el territorio, disponiendo para ello de la
ocultación con zonas de sombra ajardinadas. Así como la utilización de
materiales naturales como es la caña común (Aurundo donax), la madera,
arcillas, usando un estilo arquitectónico acorde con el entorno natural.
Garantizando así el bajo impacto medioambiental del proyecto.
Los distintos caminos de tierra llegan hasta los alojamientos, y comunican estos con los servicios higiénicos comunes que se ubicarán en un módulo que permita su fácil limpieza y el mínimo impacto ambiental. Conectando las zonas con sombras de estructuras orgánicas hechas con caña, que permita el paseo al aire libre usando un material autóctono y abundante como es la caña.
Con una
instalación fotovoltaica pretendemos reducir el consumo de energía, sirviendo
de modelo para inspirar construcciones más sostenibles. El núcleo de
alojamientos se encuentra en tramo medio, a los efectos de poder satisfacer
todas las órdenes de demanda.
El conjunto se realiza combinando espacios interiores y exteriores entrelazados con materiales naturales y cubierta vegetada. Los espacios de alojamiento y su relación con el entorno natural se presenta como una herramienta pedagógica, puesto que persigue el mínimo impacto ecológico y permite la observación de la flora y fauna.
La procedencia
del agua a utilizar para el sistema de riego será de recogida de aguas
pluviales. Se adoptan medidas correctoras que disminuyen el impacto visual de
las instalaciones de los depósitos de riego mediante la combinación de sembrado
de especies arbustivas y cercado de 2 metros de altura que anulan su percepción
visual, eliminando cualquier impacto que pudiera derivarse de dichas
instalaciones, teniendo en cuenta además que la parte superior de la
instalación de los depósitos se encuentra a ras de suelo en su lado este.
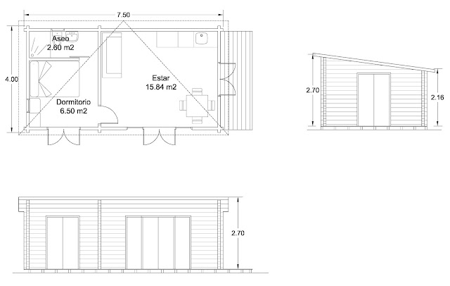
Todos los alojamientos, cafetería, aula y aseos serán cabañas prefabricadas de madera de pino nórdico de alta calidad. Las paredes tienen un grosor de 44+44 mm y los paneles del techo y del suelo 20 mm. No requieren cimentación ni losa de hormigón para instalarlas, solo se colocará de forma superficial pequeñas zapatas de hormigón prefabricado o similar.









